Бизнес-центр «Wall Street»

Мы предлагаем

Аренда и продажа офисных помещений в 8-этажном Бизнес-центре Wall Street по адресу Москва, Валовая ул., 35 от собственника без комиссии

Звоните: +7 (495) 822-30-70

  • Метро

    Серпуховская, Добрынинская, Павелецкая

  • Район

    Замоскворечье

  • Округ

    Центральный (ЦАО)

  • Деловая зона

    Между Садовым и ТТК

Свободные площади, аренда

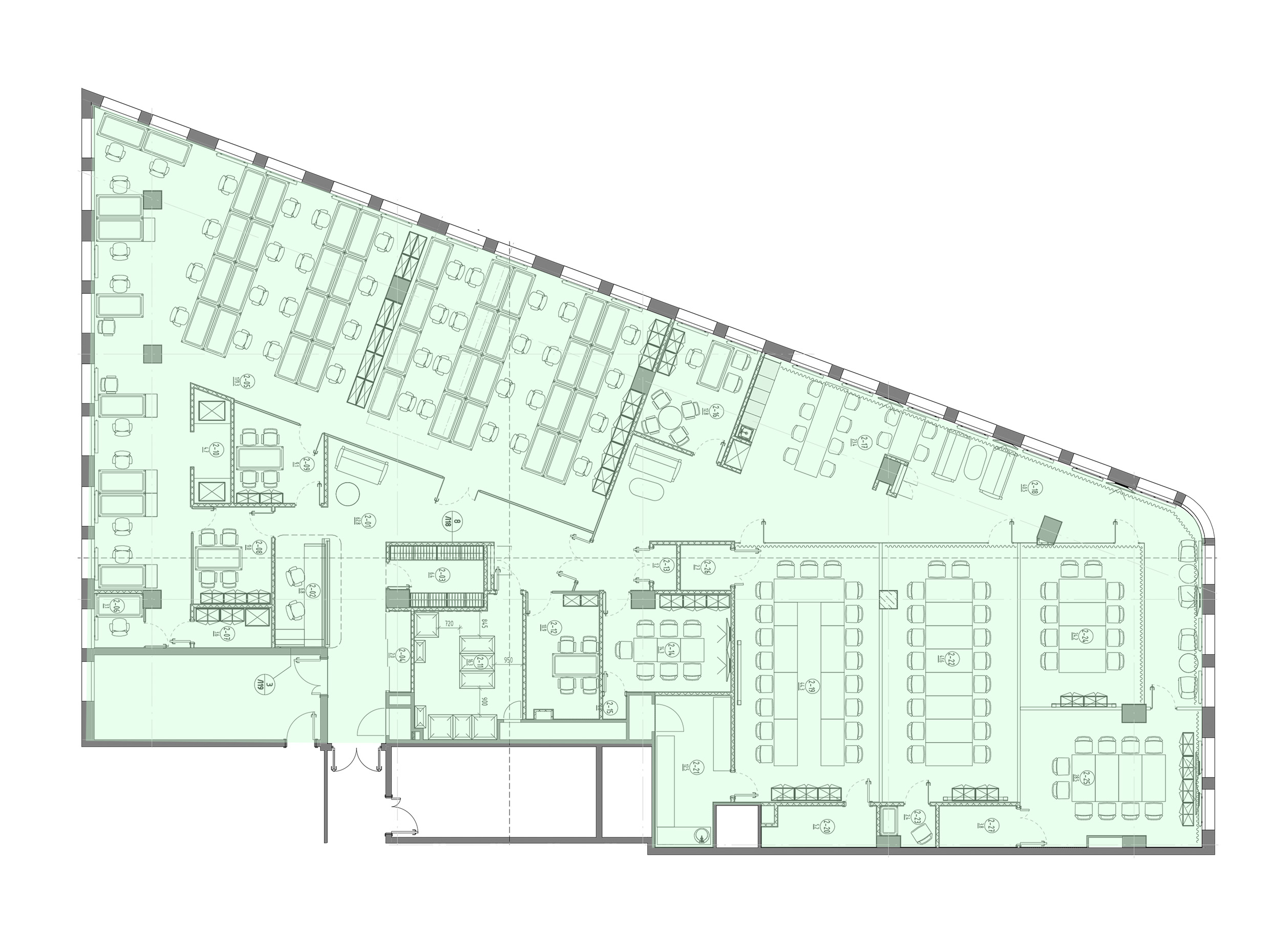
    • Площадь

      363 м2

    • Этаж

      7 из 8

    • Ставка в год

      87 840 ₽/м2

      вкл. OPEX, НДС

      Включено: OPEX, НДС

      Оплачивается отдельно: Интернет, Коммунальные услуги, Телефония, Уборка, Электроэнергия

    • Стоимость в месяц

      2 657 160 ₽

    • Свободно

Актуальная информация обо всех вакантных площадях предоставляется по запросу

Характеристики

  • Арендопригодная площадь, кв.м

    20 495

  • Общая площадь, кв.м

    32 499

  • Статус

    Построен

  • Код налоговой

    5

  • Год постройки

    2013

  • Этажность

    8

  • Размер типового этажа

    2 700

  • Кондиционирование

    Центральное

  • Вентиляция

    Приточно-вытяжная

  • Инфраструктура

    Кафе, Ресторан

  • Высота потолков

    3.9 м

  • Лифт

    есть

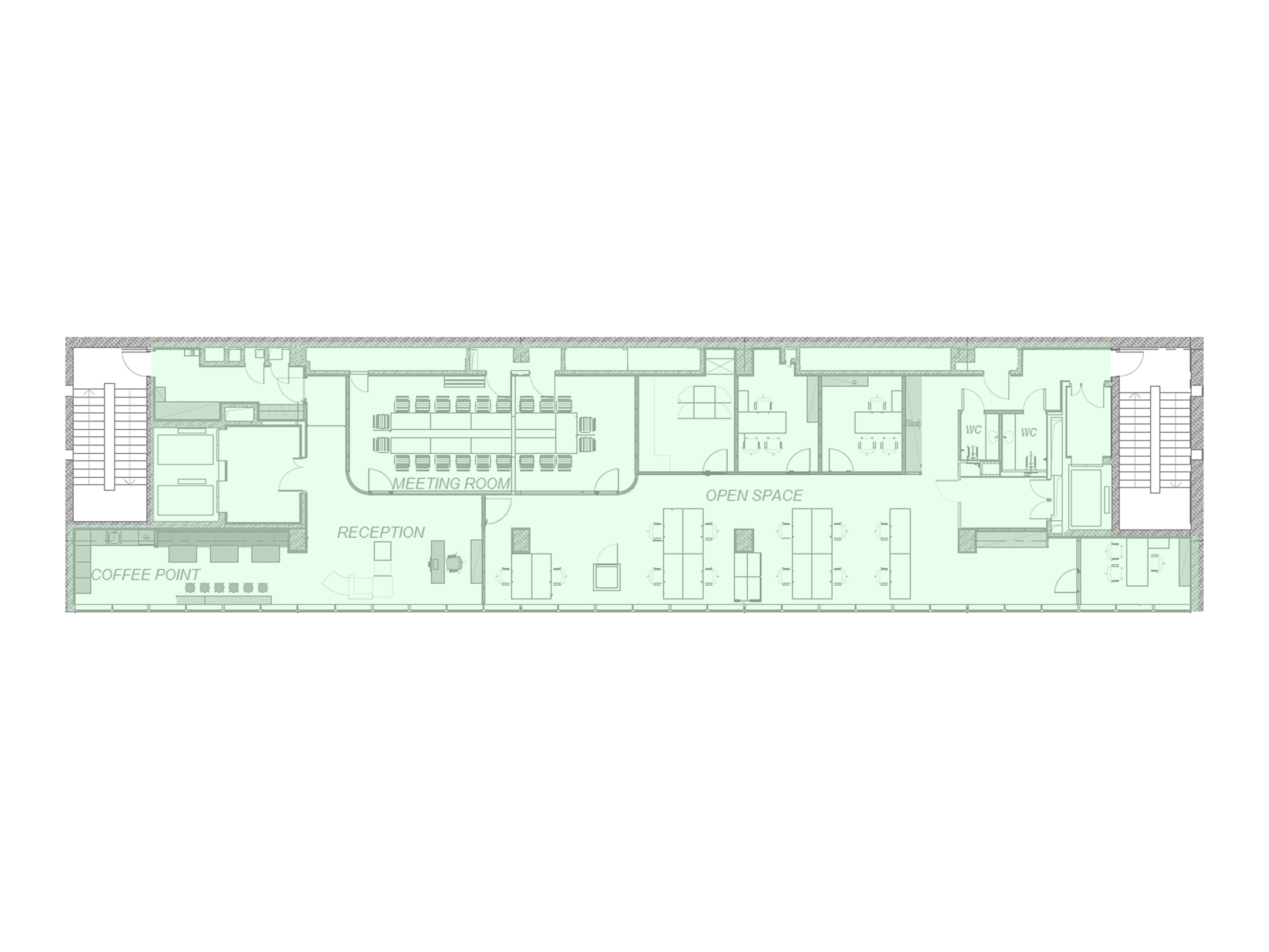
  • Планировка

    Open space, Кабинеты

  • Паркинг подземный, м/мест

    226

  • Шаг колонн

    8×8

Фотогалерея

Об объекте

Ультрасовременный бизнес-центр класса A расположен в Замоскворечье, в пешей доступности от станции метро «Добрынинская». Хорошая транспортная доступность обеспечена близким пролеганием Ленинского проспекта и Садового кольца.

В 8-этажном здании предлагаются в аренду офисы различной площади, как готовые к въезду, так и под отделку. Благодаря приточно-вытяжной вентиляции и центральному кондиционированию в офисных блоках и помещениях общего доступа создается оптимальный микроклимат. Проведены телефония, есть высокоскоростной доступ в Интернет.

Для арендаторов предусмотрен подземный охраняемый паркинг. Внутри здания находится медицинский центр, туристическое агентство. Рядом есть заведения общепита, магазины, супермаркет, аптеки и другие инфраструктурные объекты.

Организация просмотра доступных офисов возможна в удобную дату и время по предварительному согласованию. Отсутствуют переплаты по процентам, комиссии посредника – договор заключается с непосредственным владельцем выбранного помещения. Узнать больше о предложениях и оставить заявку можно по телефону или через форму на сайте. Обращайтесь – будем рады вам помочь!

Адрес

Москва, Валовая ул., 35